Ottima opportunità per avviare e/o ampliare la propria attività commerciale e/o professionale, indicato come ambulatorio medico e veterinario, studio professionale e ovviamente attività commerciale di ogni genere.
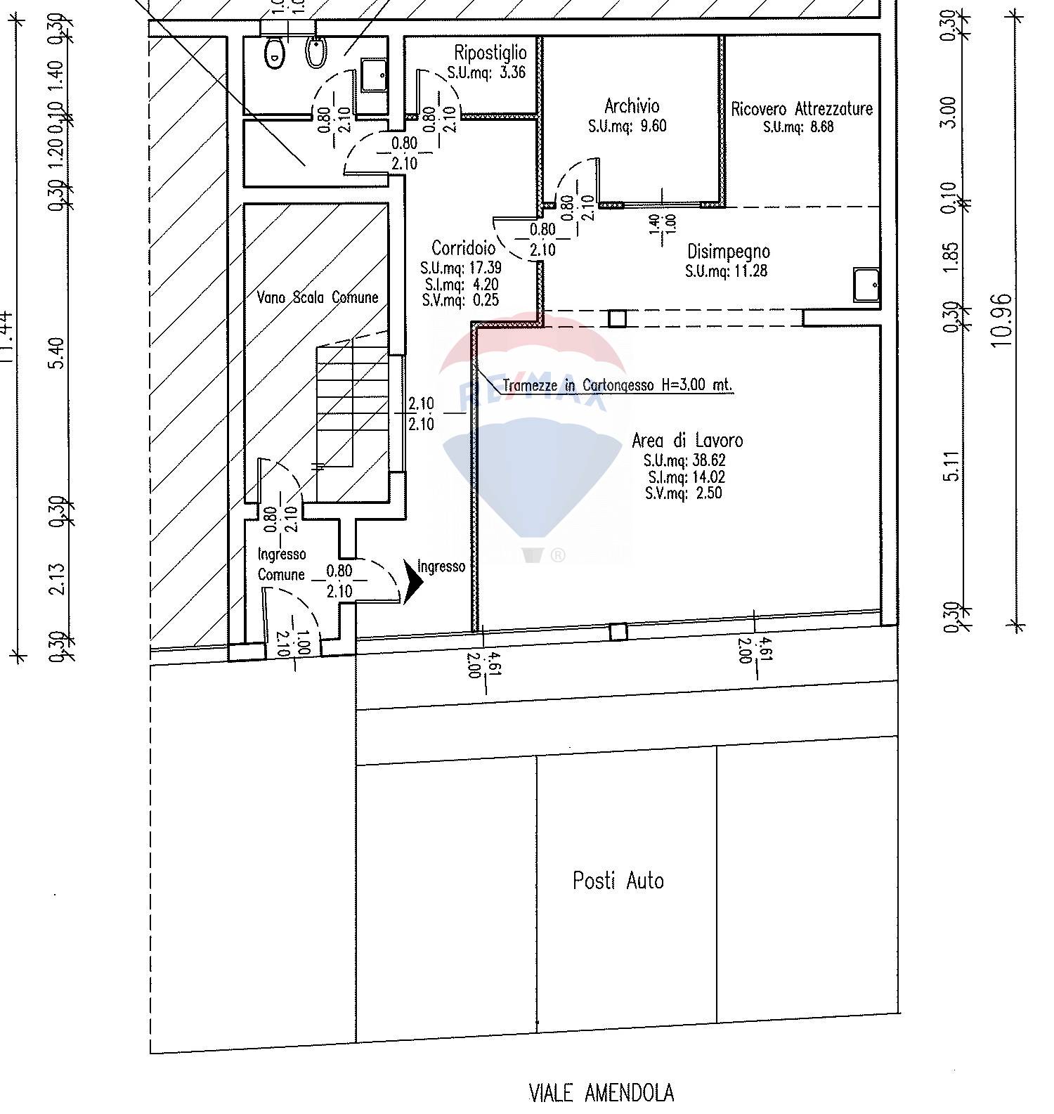
Situato al piano terra di un edificio di recente costruzione è già libero e disponibile al rogito, gode di una posizione strategica fronte strada, con due ampie vetrine che garantiscono un'ottima visibilità. L'immobile si sviluppa su una superficie totale di 128 mq, di cui 112 calpestabili, e si compone di un'ampissimo openspace e due ulteriori vani e un bagno sul retro.
L'ampio spazio a disposizione permette di organizzare gli ambienti in base alle proprie esigenze e di creare un'atmosfera accogliente e funzionale per i propri clienti.
Come si evince dalle foto e da planimetria attualmente persiste una tramezza, facilmente removibile, che crea un corridoio d'ingresso ampio e riorganizza lo spazio centrale e metà vetrina viene destinata all'ingresso.
Lo stato conservativo del Negozio è buono inoltre la caldaia è stata recentemente sostituita e dispone di aria condizionata.
L'esposizione fronte strada lo rendono facilmente accessibile e fruibile con comodità. Il contesto in cui è situato il Negozio è dinamico e vivace, con la presenza di altri esercizi commerciali e attività professionali in prossimità del centro.
Inoltre, il posto auto scoperto adiacente al Negozio offre un comodo spazio per i clienti o per la proprietà.
Il riscaldamento è autonomo e alimentato a metano, garantendo un buon livello di comfort e un'ottima gestione delle spese energetiche.
La soluzione si sviluppa su un unico piano, rendendo agevole la circolazione all'interno del Negozio e nei vani accessori.
In sintesi, questo Negozio rappresenta una scelta ideale per chi desidera avviare un'attività in un'area strategica e ben servita, con ampi spazi a disposizione e un'ottima visibilità.
Soluzione perfetta per chi vuole investire nel proprio futuro e nel successo del proprio business.


466 mq
8 Camere
5 Bagni
128 mq
1