Proponiamo in Vendita Terreno Edificabile fronte strada situato nella zona residenziale di Santa Maria Maddalena, frazione del comune di Occhiobello (RO).
La posizione è ideale: di fronte alla scuola primaria "Martin Luther King", in un contesto tranquillo e moderno composto da villette singole, bifamiliari e a schiera di recente costruzione.
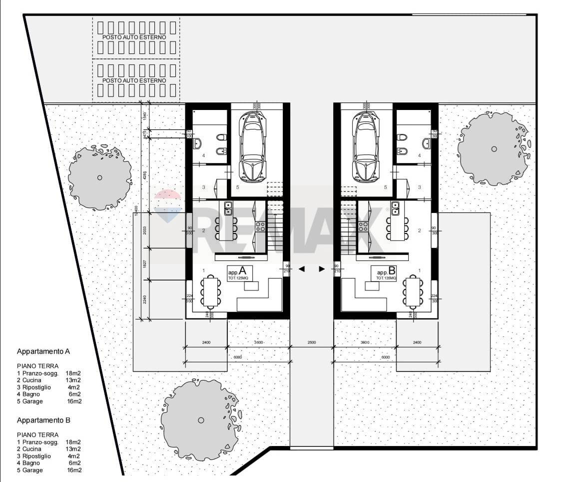
Il terreno è pianeggiante e facilmente lavorabile, con una superficie totale di 687 m² perfetti per realizzare una casa singola, una bifamiliare oppure un piccolo complesso residenziale con quattro appartamenti.
È già disponibile un progetto che prevede entrambe le soluzioni (bifamiliare o 4 unità), offrendo così flessibilità costruttiva a seconda delle esigenze.
La zona è completamente urbanizzata, con tutte le utenze e infrastrutture già presenti (acqua, luce, gas, fognature, viabilità e illuminazione).
Le informazioni e le immagini presenti in questo annuncio hanno esclusivamente scopo informativo e non costituiscono in alcun modo elemento contrattuale.
Potete contattarci senza impegno per ottenere ulteriori informazioni o per prenotare una visita al terreno in Vendita.
Può rivelarsi un' opportunità unica anche per imprese o costruttori: valutiamo possibilità di permute parziali, ad esempio cedendo una delle unità che verranno realizzate come parte del pagamento.
Inoltre, offriamo supporto completo nella gestione del progetto edilizio, dalla consulenza tecnica alla collaborazione con professionisti qualificati per la progettazione e realizzazione dell'immobile; una soluzione perfetta per chi desidera costruire la propria casa su misura o realizzare un investimento immobiliare chiavi in mano in una delle zone residenziali più richieste e in crescita del territorio.


100 mq
1 Bagni

2.200 mq

390 mq
687 mq